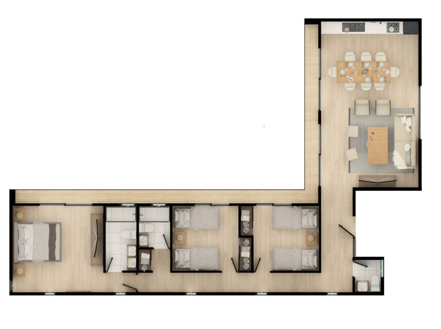
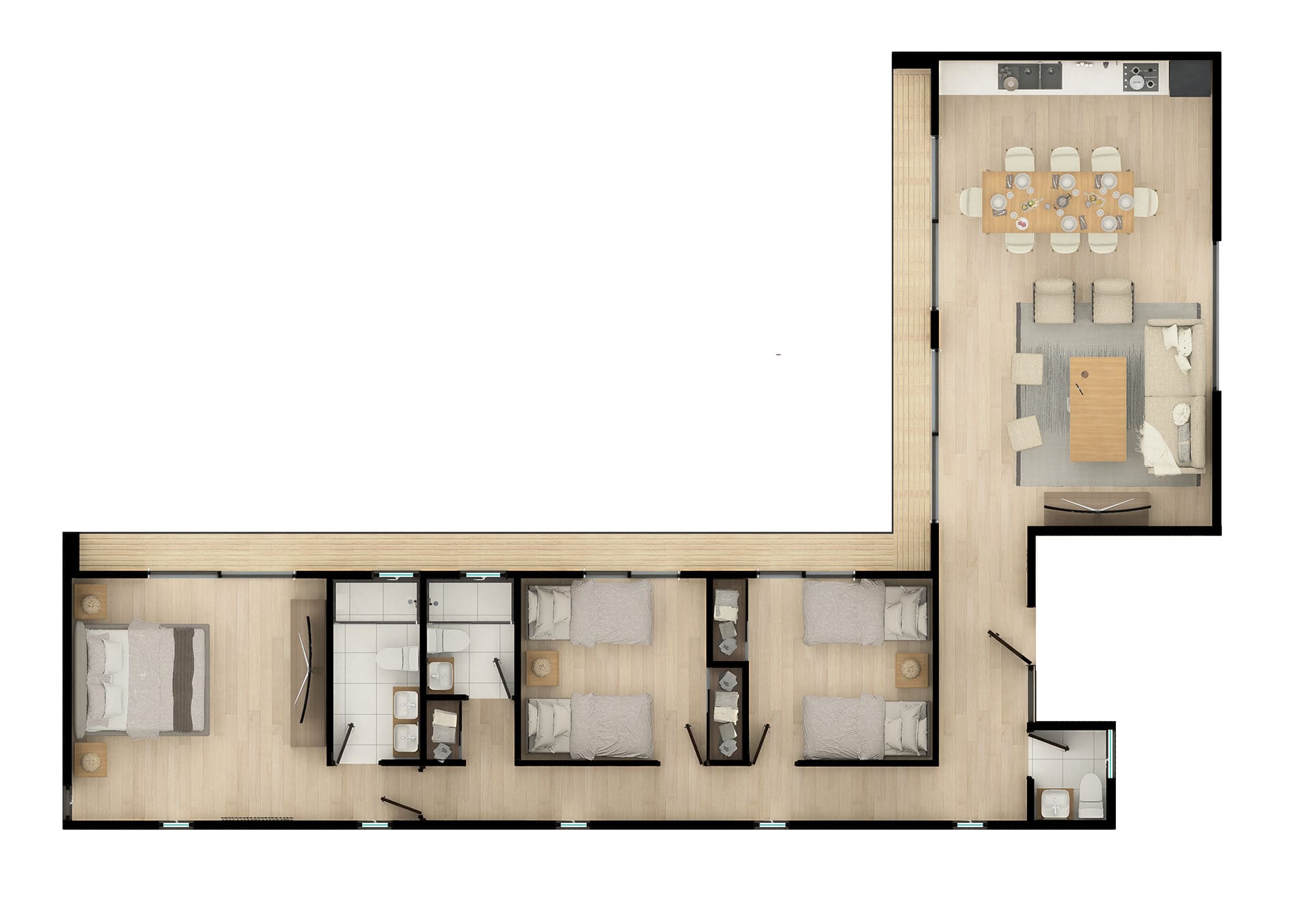
CASA PEUMO
Pack de autoconstrucción de obra gruesa en Paneles SIP. CASA PEUMO de 110 m2, de diseño moderno con grandes ventanales
abiertos al paisaje,y grandes alturas interiores que hacen de los espacios mas amplios.
Primer Piso: Tres dormitorios. Principal en suite.
Tres baños.
Gran Estar y cocina.
Logia.
Precio ahora $15.980.000 IVA incl.
Antes $16.485.500 IVA incl.








